Urgent sale! Vendor loss your gain
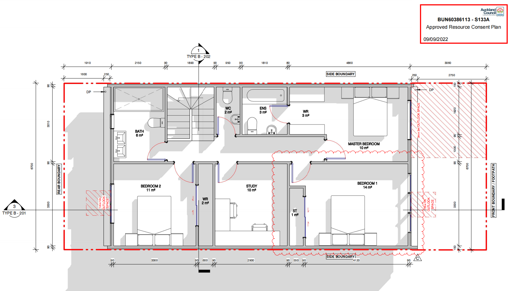
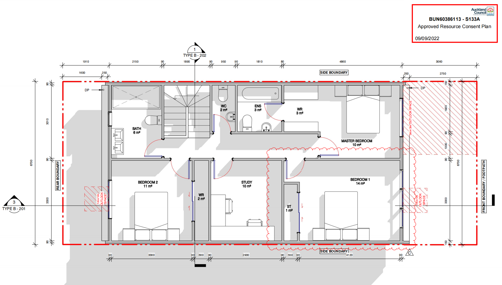
115 Park Estate Road offers an exciting development opportunity in the rapidly growing suburb of Rosehill, within the Papakura District. This property features 5 lots (36, 37, 38, 39, 40) and is ideal for residential terrece house. Draft architectural plans and Resource Consent have already been granted for two distinct types of homes.
• Type B homes are two-storey dwellings with a single garage, open-plan living/kitchen/dining areas, three bedrooms (including a master with ensuite), two guest toilets (one on each floor), a shared bathroom, and a study room.
• Type C homes offer a similar two-storey design, with open living spaces, one guest toilet, three bedrooms (one master with ensuite), a shared bathroom, and off-street parking.
Lot sizes vary, with Lot 36 at approximately 125 sqm, Lot 40 at 138 sqm, and the remaining three lots (Lot 37,38,39) averaging around 114 sqm each.
Price Lot 40 $321,300 + GST land area149.9m2, floor area 110m2, 3 bedroom+ study, 2.5 bathroom + carpark
Price Lot 39 $298,800 + GST land area110.5m2, floor area 140m2, 3 bedroom+ study, 2.5 bathroom + single garage
Price Lot 38 $298,800 + GST land area110.5m2, floor area 140m2, 3 bedroom+ study, 2.5 bathroom + single garage
Price Lot 37 $298,800 + GST land area110.5m2, floor area 140m2, 3 bedroom+ study, 2.5 bathroom + single garage
Price Lot 36 $306,000 + GST land area124.1m2, floor area 110m2, 3 bedroom+ study, 2.5 bathroom + carpark
Located just a 5-minute drive from Karaka Central, 10-minute drive from Papakura Central, the property is conveniently close to shops, services, and recreational areas. Near ACG school. It also benefits from excellent transport links, offering easy access to both local amenities and wider Auckland.
As the Rosehill and Papakura areas continue to grow, this property stands out as a prime opportunity for development. With increasing demand for housing and ongoing infrastructure improvements, investing in this site positions developers to capitalize on the region's upward trend.
• Type B homes are two-storey dwellings with a single garage, open-plan living/kitchen/dining areas, three bedrooms (including a master with ensuite), two guest toilets (one on each floor), a shared bathroom, and a study room.
• Type C homes offer a similar two-storey design, with open living spaces, one guest toilet, three bedrooms (one master with ensuite), a shared bathroom, and off-street parking.
Lot sizes vary, with Lot 36 at approximately 125 sqm, Lot 40 at 138 sqm, and the remaining three lots (Lot 37,38,39) averaging around 114 sqm each.
Price Lot 40 $321,300 + GST land area149.9m2, floor area 110m2, 3 bedroom+ study, 2.5 bathroom + carpark
Price Lot 39 $298,800 + GST land area110.5m2, floor area 140m2, 3 bedroom+ study, 2.5 bathroom + single garage
Price Lot 38 $298,800 + GST land area110.5m2, floor area 140m2, 3 bedroom+ study, 2.5 bathroom + single garage
Price Lot 37 $298,800 + GST land area110.5m2, floor area 140m2, 3 bedroom+ study, 2.5 bathroom + single garage
Price Lot 36 $306,000 + GST land area124.1m2, floor area 110m2, 3 bedroom+ study, 2.5 bathroom + carpark
Located just a 5-minute drive from Karaka Central, 10-minute drive from Papakura Central, the property is conveniently close to shops, services, and recreational areas. Near ACG school. It also benefits from excellent transport links, offering easy access to both local amenities and wider Auckland.
As the Rosehill and Papakura areas continue to grow, this property stands out as a prime opportunity for development. With increasing demand for housing and ongoing infrastructure improvements, investing in this site positions developers to capitalize on the region's upward trend.