SHOVEL READY PROJECT. All Consents Approved.
***AUCTION TUESDAY 1PM. CALL NOW***
Keep your team busy and get them on it.
Because this rare opportunity in the heart of Papatoetoe offers savvy developers a shovel-ready project that upon completion will appeal powerfully to investors (new build tax benefits) and premium homebuyers alike.
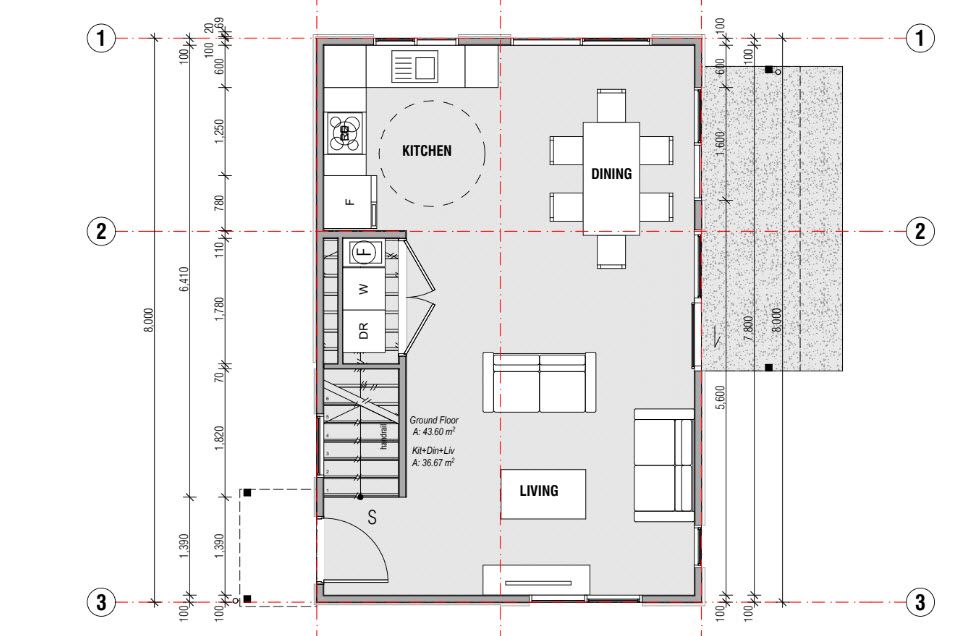
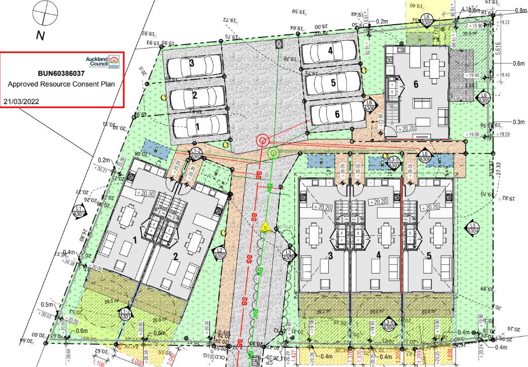
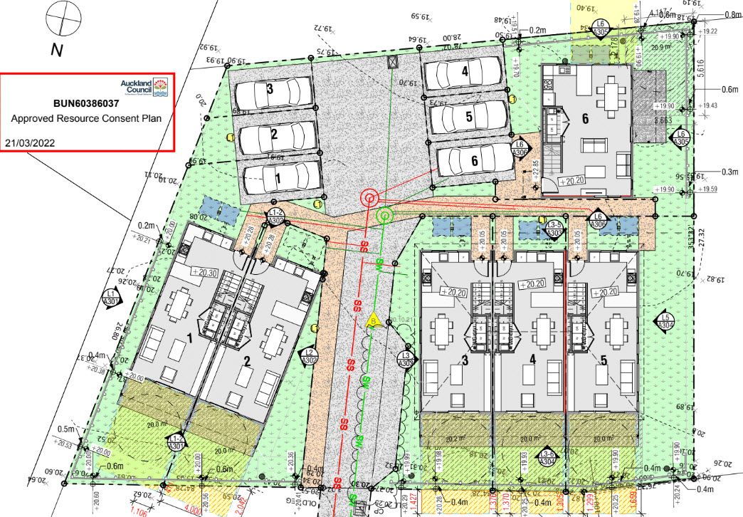
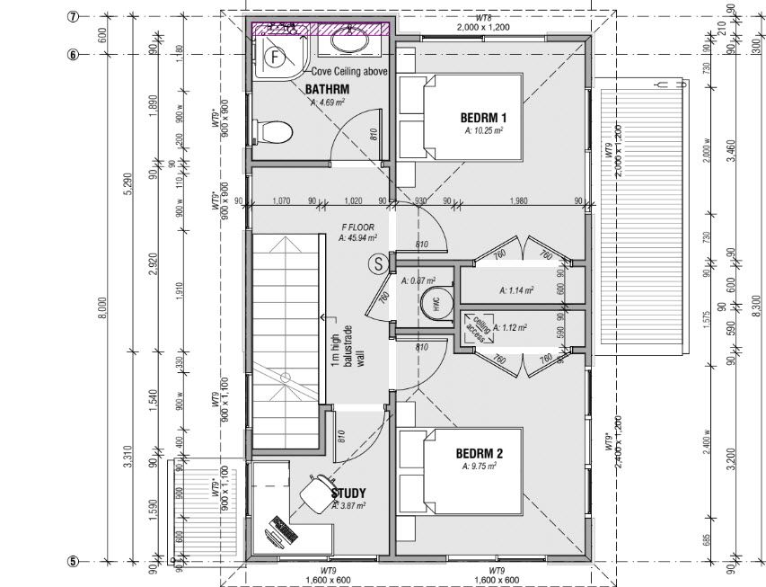
Specifically, 6 new two-storey dwellings bordering Ferndown Park comprising of:
• A duplex building accommodating two x 2-bedroom dwellings
• A triplex building accommodating three x 2-bedroom dwellings
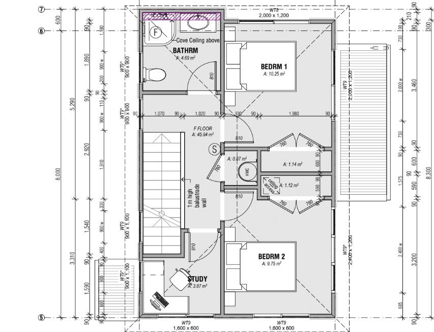
• One standalone dwelling offering 2 bedrooms plus a study
• RC, BC and EPA approved
Set back from the street, occupants will enjoy privacy in landscaped surroundings with allocated car parking.
Being close to local schools, arterial routes and public amenities underpin this high-value proposition.
Auction (Unless sold prior): Tuesday 2 August 2022 at 1pm - Ray White Manukau
Call Richie Lewis or Jas Sandhu now for information or to arrange a viewing.
PLEASE NOTE:
All prospective purchasers shall complete their own due diligence, seek legal and expert advice, and satisfy themselves with respect to information supplied during the marketing of this property, including but not limited to: the floor and land sizes, boundary lines, underground services, along with any scheme plans or consents.
Keep your team busy and get them on it.
Because this rare opportunity in the heart of Papatoetoe offers savvy developers a shovel-ready project that upon completion will appeal powerfully to investors (new build tax benefits) and premium homebuyers alike.
Specifically, 6 new two-storey dwellings bordering Ferndown Park comprising of:
• A duplex building accommodating two x 2-bedroom dwellings
• A triplex building accommodating three x 2-bedroom dwellings
• One standalone dwelling offering 2 bedrooms plus a study
• RC, BC and EPA approved
Set back from the street, occupants will enjoy privacy in landscaped surroundings with allocated car parking.
Being close to local schools, arterial routes and public amenities underpin this high-value proposition.
Auction (Unless sold prior): Tuesday 2 August 2022 at 1pm - Ray White Manukau
Call Richie Lewis or Jas Sandhu now for information or to arrange a viewing.
PLEASE NOTE:
All prospective purchasers shall complete their own due diligence, seek legal and expert advice, and satisfy themselves with respect to information supplied during the marketing of this property, including but not limited to: the floor and land sizes, boundary lines, underground services, along with any scheme plans or consents.