1620m2 Site, In Waitakere Township
Yes, that's right, we have a section available in the middle of the sought-after Waitakere Township! And it's just a hop skip and a jump away from the highly regarded Waitakere School.
Local families or those wishing to enter into this amazing location, this is your chance to nab an amazing site for your brand-new home or relocatable Bungalow or Villa. With 1620m2 of land to work with and enough drainage to allow for four bedrooms, making it ideal for your dream home.
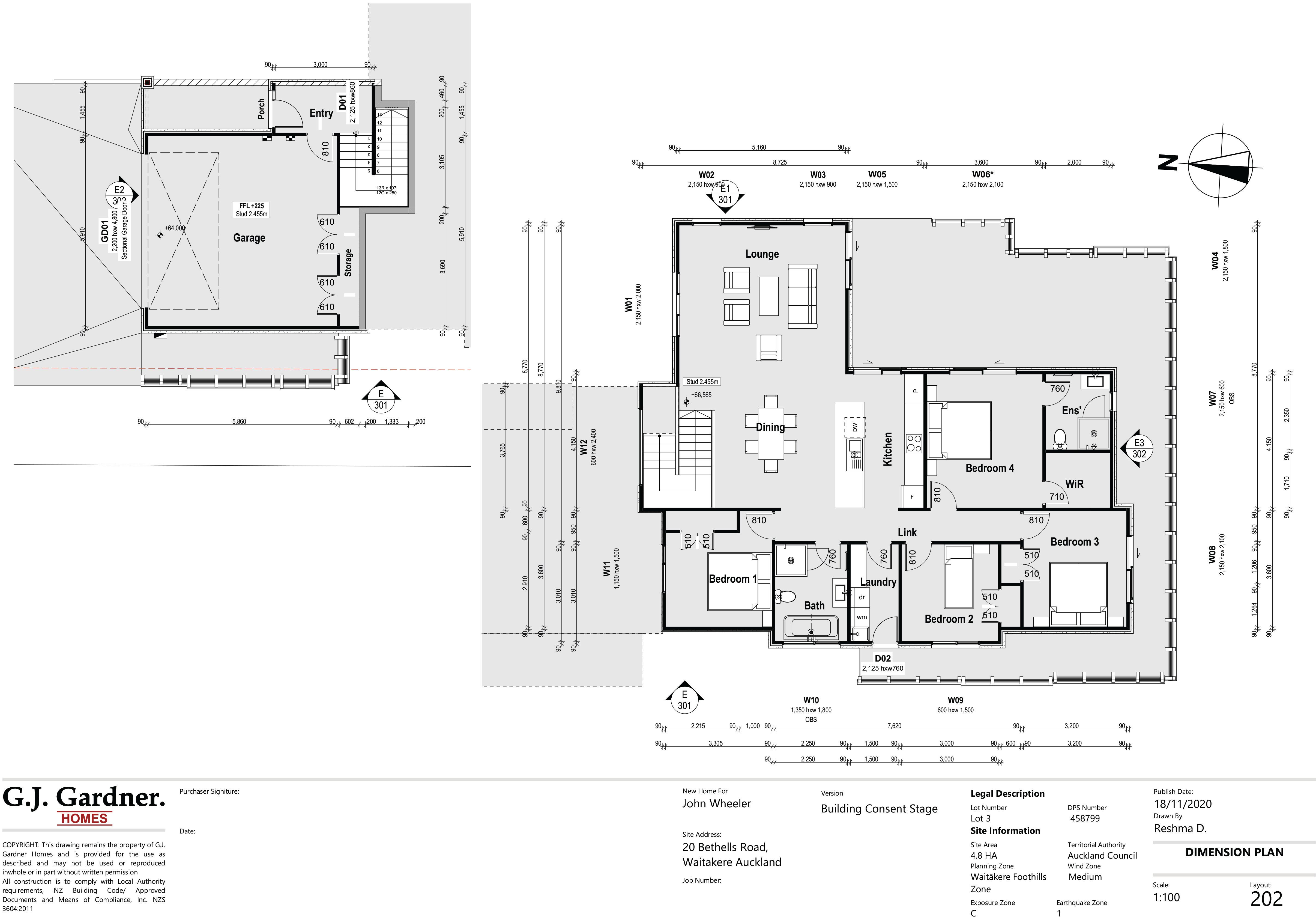
Within the images we have renders, GJ Gardener floor plans and a vendor commissioned design via Lifestyle Architecture. We have pricing from GJ Gardener homes for this new build as part of our information package. Please email us to obtain this information.
The location here is top notch, being a quick drive from Swanson and the train station, an easy commute to Westgate, Kumeu and the North Western Motorway while also being in easy range of Bethell's Beach.
This is a rare and unusual offering, not likely to be repeated any time soon. Contact us now for more information or to register your interest.
Local families or those wishing to enter into this amazing location, this is your chance to nab an amazing site for your brand-new home or relocatable Bungalow or Villa. With 1620m2 of land to work with and enough drainage to allow for four bedrooms, making it ideal for your dream home.
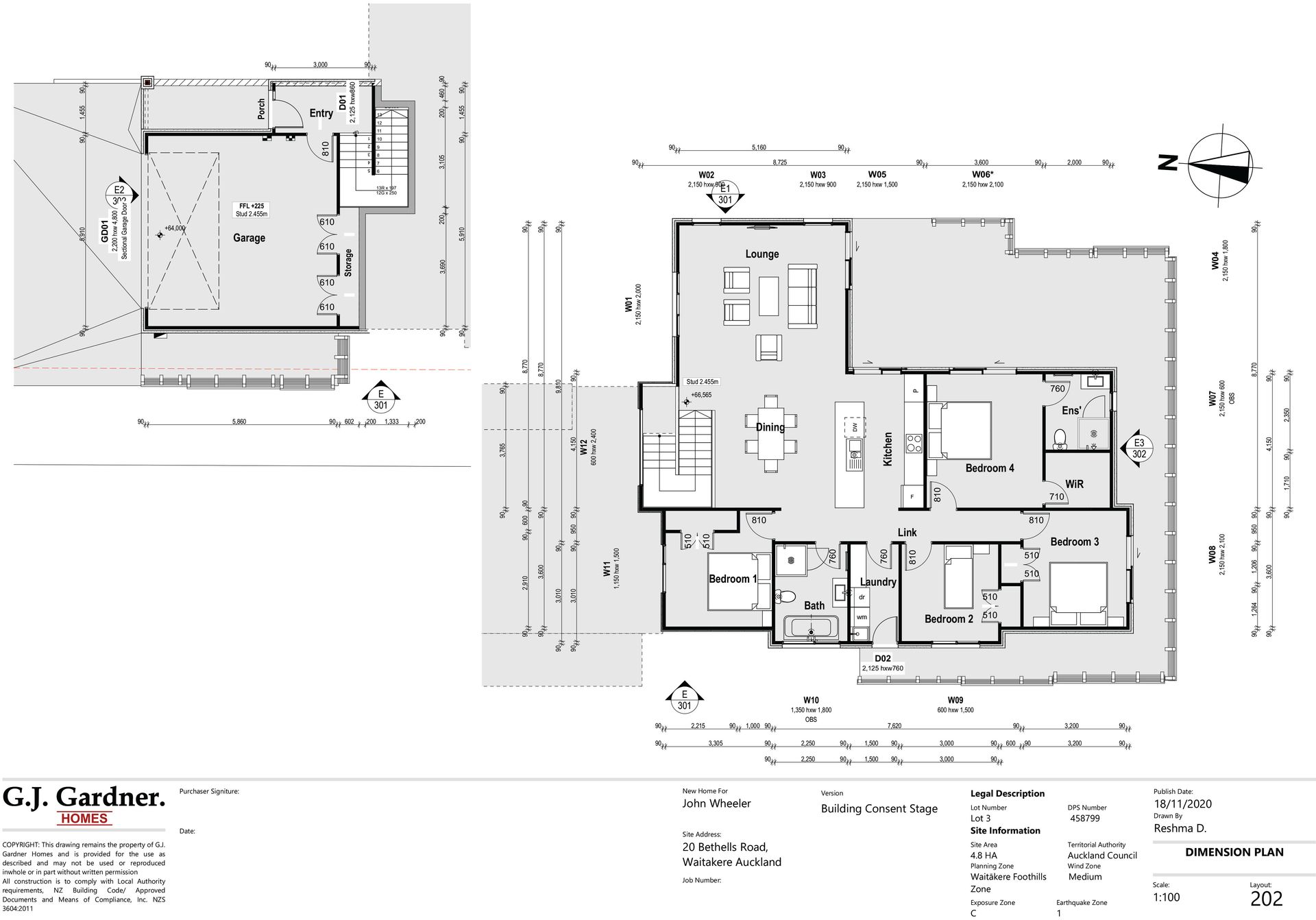
Within the images we have renders, GJ Gardener floor plans and a vendor commissioned design via Lifestyle Architecture. We have pricing from GJ Gardener homes for this new build as part of our information package. Please email us to obtain this information.
The location here is top notch, being a quick drive from Swanson and the train station, an easy commute to Westgate, Kumeu and the North Western Motorway while also being in easy range of Bethell's Beach.
This is a rare and unusual offering, not likely to be repeated any time soon. Contact us now for more information or to register your interest.