Space in Witherlea
Positioned in the heart of popular Witherlea and comfortably within the school zone, this spacious and attractive home will draw interest from a range of prospective buyers who appreciate the benefits of a large permanent home on a spacious section with great garaging, parking and storage.
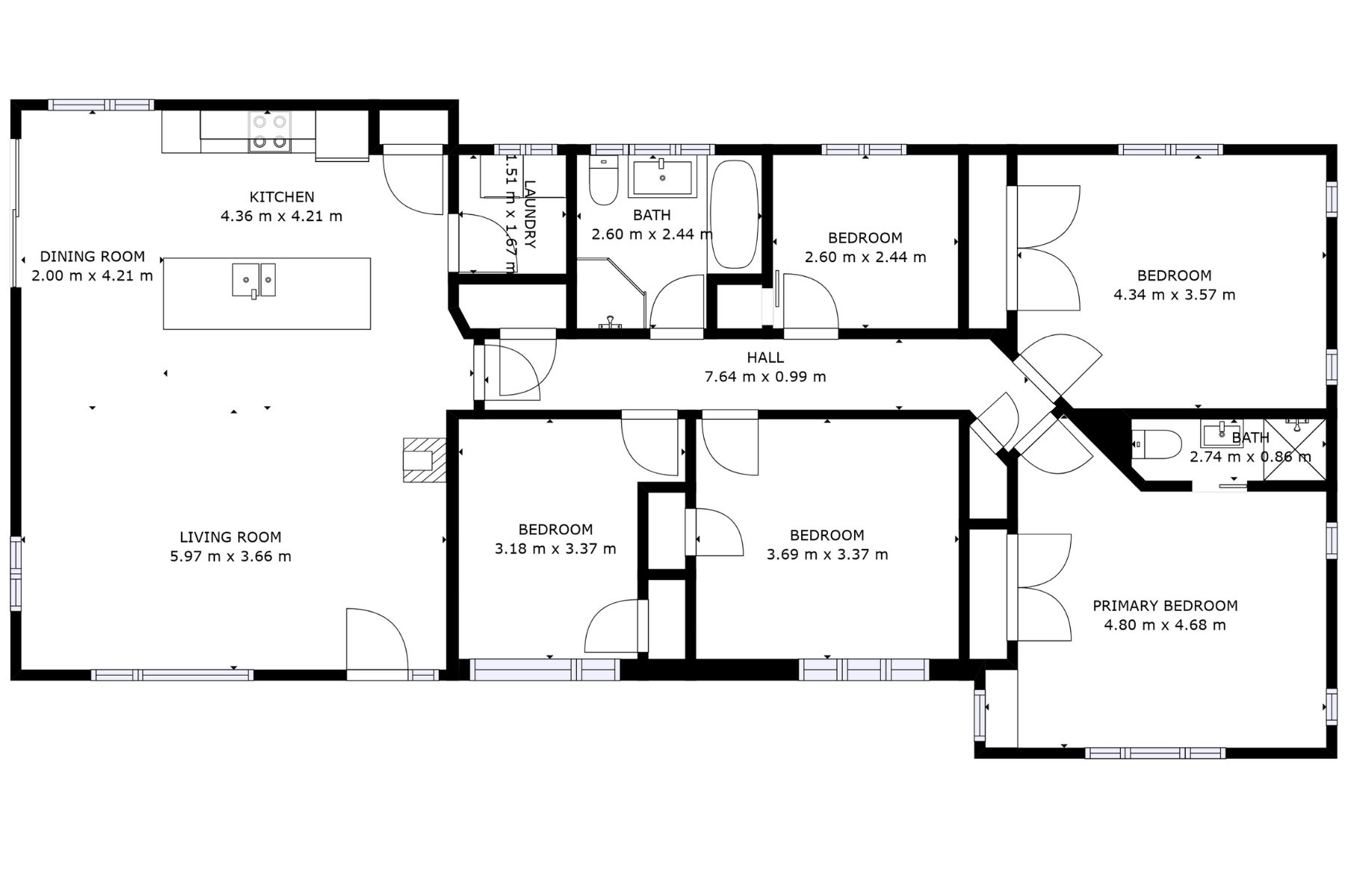
The renovated and extended home boasts 5 bedrooms, or as currently used, 4 bedrooms and office. The master has an ensuite. A roomy family bathroom includes a bath and toilet. The large open plan kitchen, dining and living room, opens out to a small deck and excellent back yard. The modern functional kitchen, and living space are designed for entertaining, and a comfortable temperature is guaranteed all year around - with a heat pump, log-burner, hallway nite store, a home ventilation system and double glazing. A separate laundry adds to the convenience. The 715m2 section provides the room for a growing family, and outdoor living.
Two large single garages, good storage capacity, new raised garden boxes and off-street parking add to the appeal. The property is fully fenced. The location is great - easy walking to Witherlea school, Redwoodtown shopping, and the Wither Hills Farm park.
An attractive, spacious home, a large section, a highly sought after location, within close proximity to amenities all make this a compelling proposition.
Get in quick. It won't last long! Contact Jo or Murray now for a private inspection.
The renovated and extended home boasts 5 bedrooms, or as currently used, 4 bedrooms and office. The master has an ensuite. A roomy family bathroom includes a bath and toilet. The large open plan kitchen, dining and living room, opens out to a small deck and excellent back yard. The modern functional kitchen, and living space are designed for entertaining, and a comfortable temperature is guaranteed all year around - with a heat pump, log-burner, hallway nite store, a home ventilation system and double glazing. A separate laundry adds to the convenience. The 715m2 section provides the room for a growing family, and outdoor living.
Two large single garages, good storage capacity, new raised garden boxes and off-street parking add to the appeal. The property is fully fenced. The location is great - easy walking to Witherlea school, Redwoodtown shopping, and the Wither Hills Farm park.
An attractive, spacious home, a large section, a highly sought after location, within close proximity to amenities all make this a compelling proposition.
Get in quick. It won't last long! Contact Jo or Murray now for a private inspection.