Property main details

Commercial

  • Leased

Specifications

  • Property Type

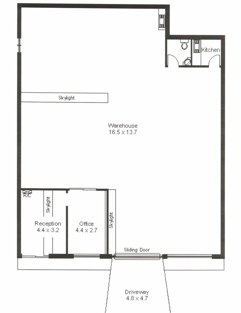
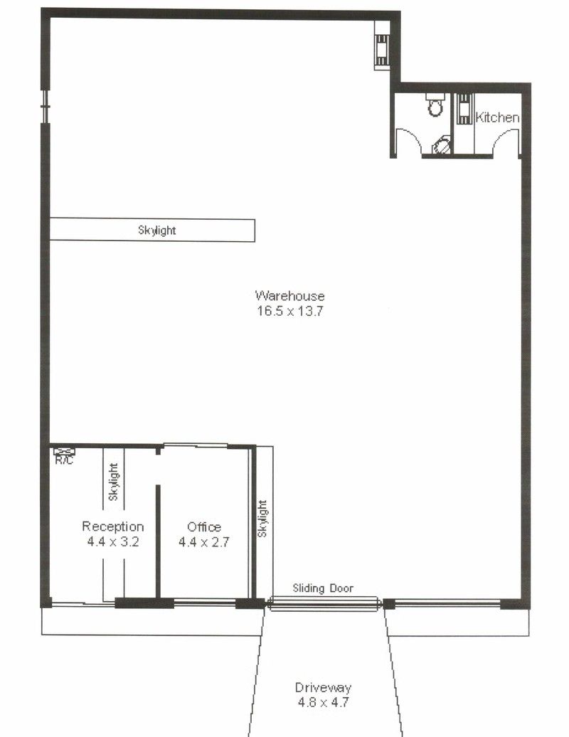
Workshop

226 sqm (approx) workshop with kitchen, toilet,
25.96 sqm Reception and office space
Great Location

Get in touch

We'd love to hear from you

If you're interested in looking at properties around the area, or want the latest information on the market in your neighbourhood, we'd love to hear from you. 

40 Pope Street BEVERLEY 5009, South Australia
Back to top