Awesome Building Option- Deconstructed Houses
No section here ... but these deconstructed house lots are available in Christchurch and could be a better option than building from scratch when you secure your new section.
5 deconstructed house lots will be auctioned at 1 pm on 27 June 2013 at Wigram Air Force Museum, Christchurch. All the auctions will have different disclosed reserves on the day - starting from as low as $58,000.
Key facts:
- They are classified as new builds, so you will need to follow the new build consent process (incl. submitting redrawn plans) with your local body Authority.
- The homes were built post the 2004 building changes.
- Choose your own builder and building site (you will need to check your section covenants). You do not need to already own a section to purchase one, but you will need storage.
- There will be additional materials needed to finish your new home.
- The price includes deconstruction which must be done by Mac Developments.
- The house lots will be neatly stacked into a container, plus you get the roof (if long-run), trusses and frames (stacked and numbered).
- You must pay freight forward for the house lots from their location in Christchurch.
- Most of these houses are currently located in Christchurch's residential red zones.
- They are not able to be relocated as a whole.
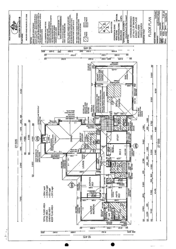
Photos show the house lots to be auctioned. Trademe reference for all house lots: keyword MACDEV.
Email me now with your name and contact details, and I'll send you the information pack on the upcoming auction including pre-auction viewing times and addresses. The pack contains FAQ's, floor plans, comprehensive chattel schedules, a copy of the Christchurch City Council property file, photos and contractual and auction documentation.
I recommend you seek legal advice and do your own due diligence prior to bidding at Auction. Live phone bidding or nominated bidders can be arranged. Phone Murray to register on 021 480 250 or 03 371 5005.
5 deconstructed house lots will be auctioned at 1 pm on 27 June 2013 at Wigram Air Force Museum, Christchurch. All the auctions will have different disclosed reserves on the day - starting from as low as $58,000.
Key facts:
- They are classified as new builds, so you will need to follow the new build consent process (incl. submitting redrawn plans) with your local body Authority.
- The homes were built post the 2004 building changes.
- Choose your own builder and building site (you will need to check your section covenants). You do not need to already own a section to purchase one, but you will need storage.
- There will be additional materials needed to finish your new home.
- The price includes deconstruction which must be done by Mac Developments.
- The house lots will be neatly stacked into a container, plus you get the roof (if long-run), trusses and frames (stacked and numbered).
- You must pay freight forward for the house lots from their location in Christchurch.
- Most of these houses are currently located in Christchurch's residential red zones.
- They are not able to be relocated as a whole.
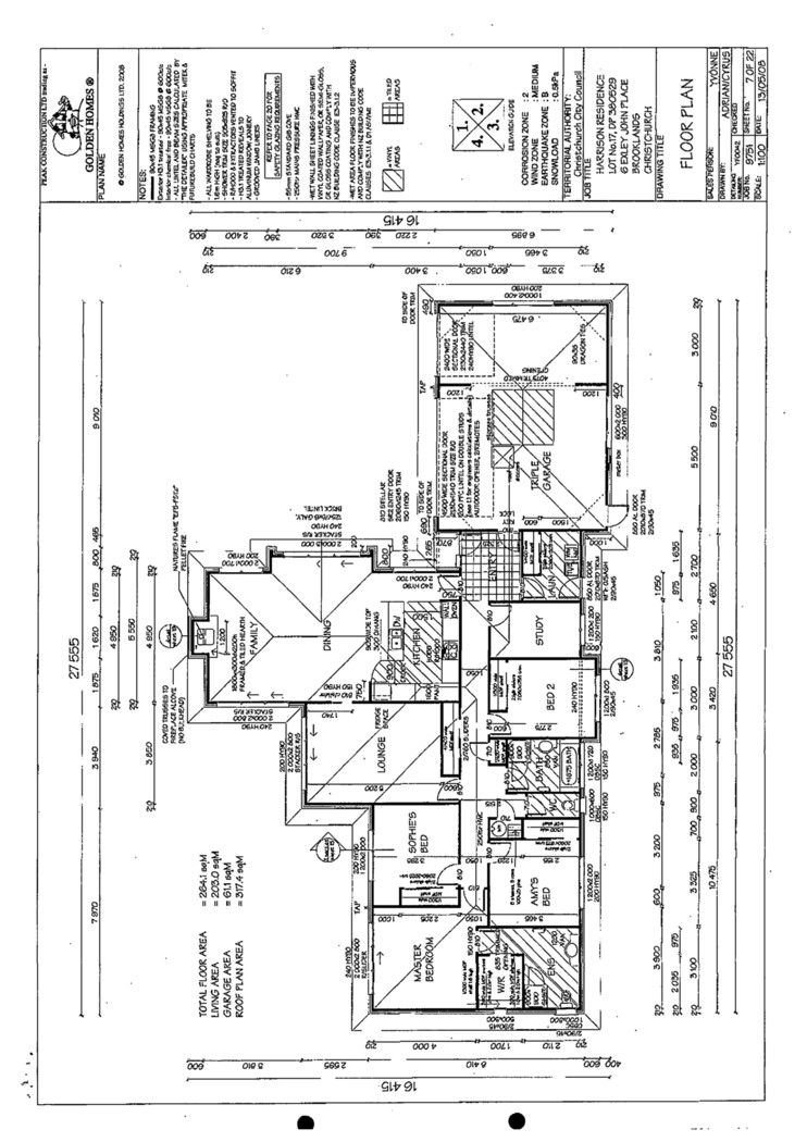
Photos show the house lots to be auctioned. Trademe reference for all house lots: keyword MACDEV.
Email me now with your name and contact details, and I'll send you the information pack on the upcoming auction including pre-auction viewing times and addresses. The pack contains FAQ's, floor plans, comprehensive chattel schedules, a copy of the Christchurch City Council property file, photos and contractual and auction documentation.
I recommend you seek legal advice and do your own due diligence prior to bidding at Auction. Live phone bidding or nominated bidders can be arranged. Phone Murray to register on 021 480 250 or 03 371 5005.