Property main details

3
3
1

Home For Sale

  • Sold For $799,000
  • Townhouse

Specifications

  • Property Type
    Townhouse

REAR UNIT & FURNISHED - ONLY 5% DEPOSIT

- 3 BEDROOM 3 BATHROOM TOWNHOUSE - REAR UNIT
- FULLY FURNISHED AND READY FOR TENANTS TO MOVE IN
- LOCK UP GARAGE INCLUDED

INVESTOR SPECIAL
RENTAL GUARANTEE (1st year)
FREE Furniture Pack or $10,000 CASH BACK
ONLY 5% Deposit
(For a limited time and conditions apply)

This is an exciting promotion for investment buyers. These properties are fixed price and turnkey, the agreements are favorable.

They are located in Hamilton East between the University, the CBD and the NEW Multi Billion Dollar INLAND PORT.
This is a high growth high demand location with exciting upside.

These townhouses will be completed over the next few months through to year's end.

THE NUMBERS
- Priced at $799,000
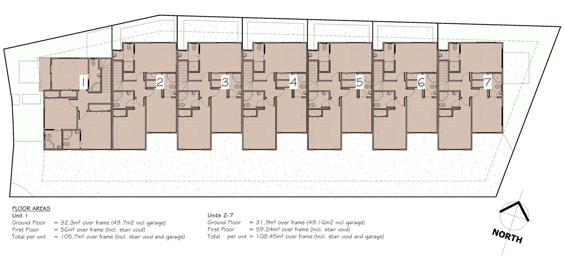
- Unit 7 has 105m2 floor area. (incl stair void & garage)
- Rent appraised at $620 per week.
- 5% deposit and nothing more until completion (held in lawyers trust a/c)
- Brought to you by proven Hamilton Developers supplying good quality properties.

LOCATION - The property is located on the eastern side of Hamilton City. Conveniently situated next to the University of Waikato and with easy access to the new Expressway.
The CBD is only a few kms away. Waikato Hospital is an easy 8 mins drive (approximately 4.8 km away).
Easy to find amenities close by include: Countdown, gym, cafes, restaurants, and The Warehouse are all within walking distance.
This property is also suitable for 'renting by room' and would be ideal for students and professionals (this could further increase returns).

BE QUICK - THIS IS A HIGH GROWTH INVESTMENT LOCATION AND THESE WILL SELL FAST!

Request a free phone/zoom/in person consultation to discuss exactly how easily you could own this or other exceptional investment property.

Contact me now for a full information pack or to discuss your property requirements:

Craig Warburton
021-938 848 or 0800 248 946
craig@citypropertyinvestment.co.nz

Get in touch

We'd love to hear from you

If you're interested in looking at properties around the area, or want the latest information on the market in your neighbourhood, we'd love to hear from you. 

7/18 May Street Hamilton, Hamilton City
Back to top